Inbetween
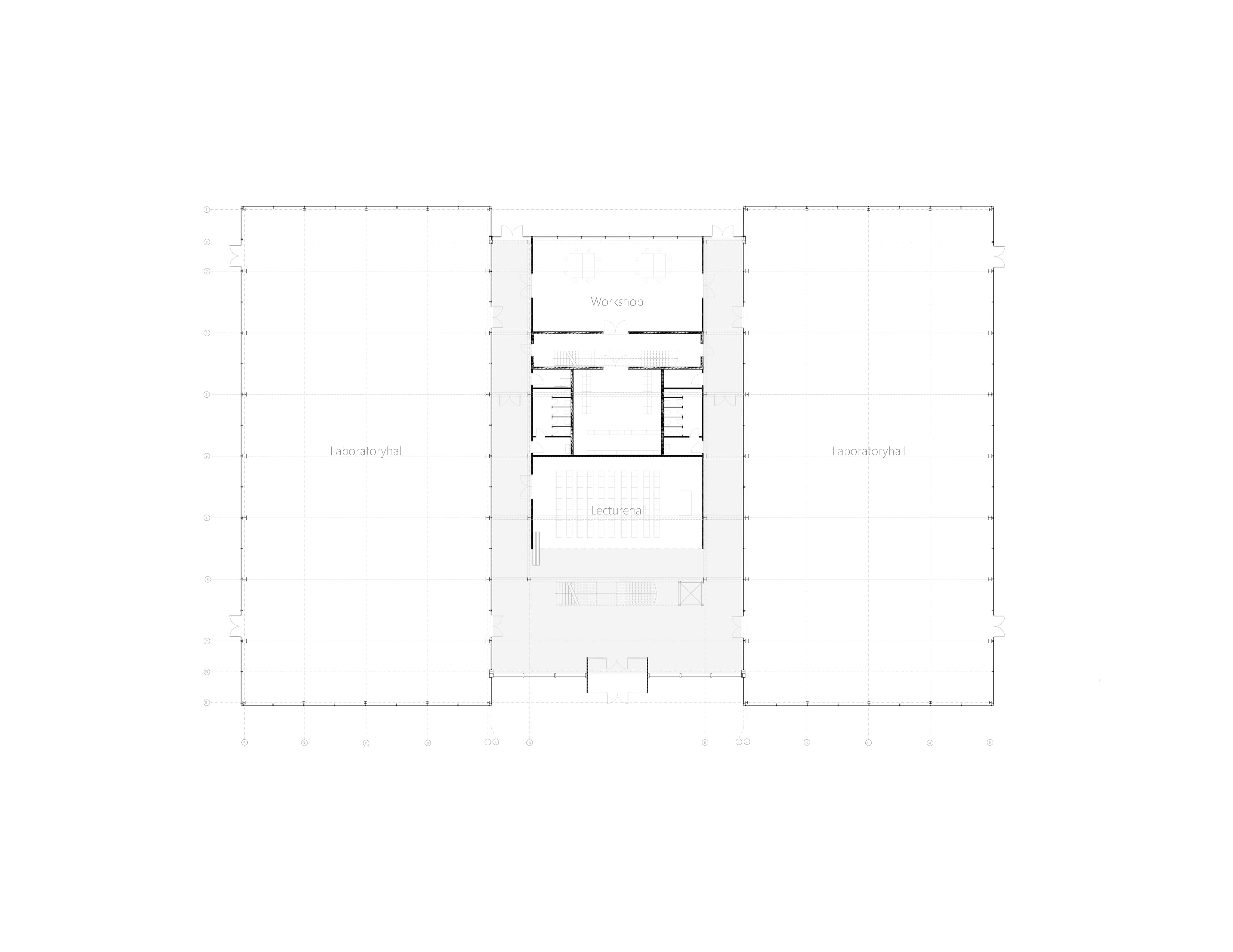
The project establishes an open and welcoming environment that supports theoretical, practical, and experimental learning as part of Karlsruhe University of Applied Sciences’ campus. With two large laboratory halls and workshops on levels M and 1, the building provides generous space for innovation, research, educational activities, individual researchers, and small startups.
On the second floor, offices and seminar rooms offer flexible areas for teaching, meetings, and collaborative work. The open cafeteria overlooks the main entrance and the surrounding green outdoor space, inviting students and visitors to relax, have a coffee, and connect between classes.
At the heart of the building, a central T-structure brings together the three primary learning functions while housing administrative, social, and technical services. The steel beam structures of the laboratory halls are deliberately separated from this central core, preventing vibrations and movements caused by laboratory activities from transferring through the main structure and ensuring optimal working conditions.
Client
Educational Project
Project
Group Project
Year
2023
Scroll down






More projects

